RJDM - Metabaru
Located in Yoshinogari, Japan
ICAO - RJDM, IATA -
Data provided by AirmateGeneral information
Coordinates: N33°19'31" E130°24'49"
Elevation is 53 feet MSL.
Magnetic variation is -7° East View others Airports in Saga Prefecture
Operational data
Special qualification required
Current time UTC:
Current local time:
Communications frequencies: [VIEW]
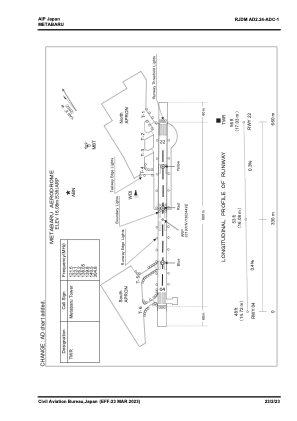
Runways:
| RWY identifier | QFU | Length (ft) | Width (ft) | Surface | LDA (ft) |
| 04 | 0° | 2165 | 98 | UNK | |
| 22 | 0° | 2165 | 98 | UNK |
Airport contact information
Address: Yoshinogari Japan



